项目名称:库伯高等科学艺术联合大学(The Cooper Union for the Advancement of Science and Art ??
建筑师:Morphosis 建筑事务所
项目地点:美国,纽约
建筑面积??6??58sqm
设计时间??004-2006??
建造时间:2006-2009??
摄影:Iwan Baan
由Morphosis建筑师事务所的托姆梅恩(Thom Mayne)领衔设计的纽约库珀学院(Cooper Union)科学与艺术大楼??009????5号剪彩开??这是Morpho-sis在纽约设计完成的第一个作品??
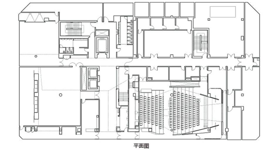
这座9层高的教学大楼主要容纳了库珀学院的工学院、人类和社会学系、建筑系和艺术系。由于库珀学院的教育宗旨是致力于自由、开放和无障碍的教育,建筑本身就是这种理念的象征。透明的视觉感官和敞开的公共空间将城市的物质、社会和文化与机03 构联系起来。在街头,透明的外观邀请附近的人们观察,并参与在其中举行的活动。许多公共职能空间展览馆、董事会会议室和200个座位的礼堂都仿佛面向公众敞开??
托姆的空间主要用作非正式的交流,同时它也是新的教学建筑的学术中心,为即兴和既定的会议、学生集会、演讲以及智力辩论提供了场地,同时也定义了其学术氛围。垂直的校区围绕着开放和连接的中庭组织,与建筑等高,用空中桥梁来跨越。起起伏状的网架结构包裹住了??.1 m宽的大台阶,台阶从广场水平线上升4层直达中庭的天窗,贯通建筑物的整体??
内部的建筑被视作一种手段,以促进学校之前位于独立建筑中??个学院之间的合作和跨学科对话。从双倍高度的入口大厅,大楼梯上升4层,止于一个玻璃做成的学生休息室,休息室可以俯瞰这个城市。从五层到九层,是天空型的大厅和会议场所,包括学生休息室、研讨室、储物柜以及俯瞰市容的座位区,全部围绕中庭组织起来。空中桥梁跨过中庭,连接起这些非正式的空间??
为了创造一个活跃的学术空间,设计师为建筑赋予了的电梯,停靠在第一、第五和第八层,鼓励大家使用大楼梯和空中桥梁。辅助电梯停靠每个楼层,不仅为了实现行动数据自动化,也为了搬运材料、艺术品以及设备等的实践任务。第四层和第八层设置了会议室、演讲室、无线网络中心和计算器登记中心。建筑主要的公共空间是还是集中在底层??
文化建筑                                                    大学                                                    汤姆梅恩                                                    美国                                                    纽约                                                
分享到:
更多

评星:
  • 0
  • 0

作品评论(3)

非常优秀的版面设计。

2020/3/4回复(0)
提交评论

简洁有力度,完美很实用。

2020/3/4回复(0)
提交评论

布置合理,功能丰富。

2020/1/10回复(0)
提交评论
登录 后参与讨论
相关推荐:
本站所有资源由用户上传,仅供学习和交流之用;未经授权,禁止商用,否则产生的一切后果将由您自己承担!素材版权归原作者所有,如有侵权请立即与我们联系,我们将及时删除
浏览:674 次数:3
下载:免费下载 收藏:0
等级:
编号:37893 8
文件格式:jpg图片
文件大小:1.45MB
投稿:CAD 进入
上传时间:2016/1/5 18:39:42
如有侵权请联系删除

您可能在找这些:

网站首页 典尚平台 建筑素材 三维模型 室内装修 视频素材网 上传教程 帮助中心 热门搜索 版权申明 关于我们 联系典尚

Copyright © 2000-2020 www.jzsc.net.粤ICP备07047611号 All Rights Reserved.

客服QQ:609470690 客服电话:0755-83549300 深圳市典尚风设计有限公司

Copyright© 2016典尚平台 JZSC.NET

网站推荐使用腾讯、Chrome浏览器浏览,不推荐360,很卡

粤公网安备 44030302000908号

QQ咨询
推广分享
×
复制本页url网址

推广详情

如您已登录,分享网址将自动加载您的推广编号,您将获得2元/注册用户的奖励。

推广记录  积分记录

网站首页
回顶部